アメリカンガレージ
トレーラーハウス
楽しいスローライフをご検討中の方に、おすすめです。

180万円(別途消費税)
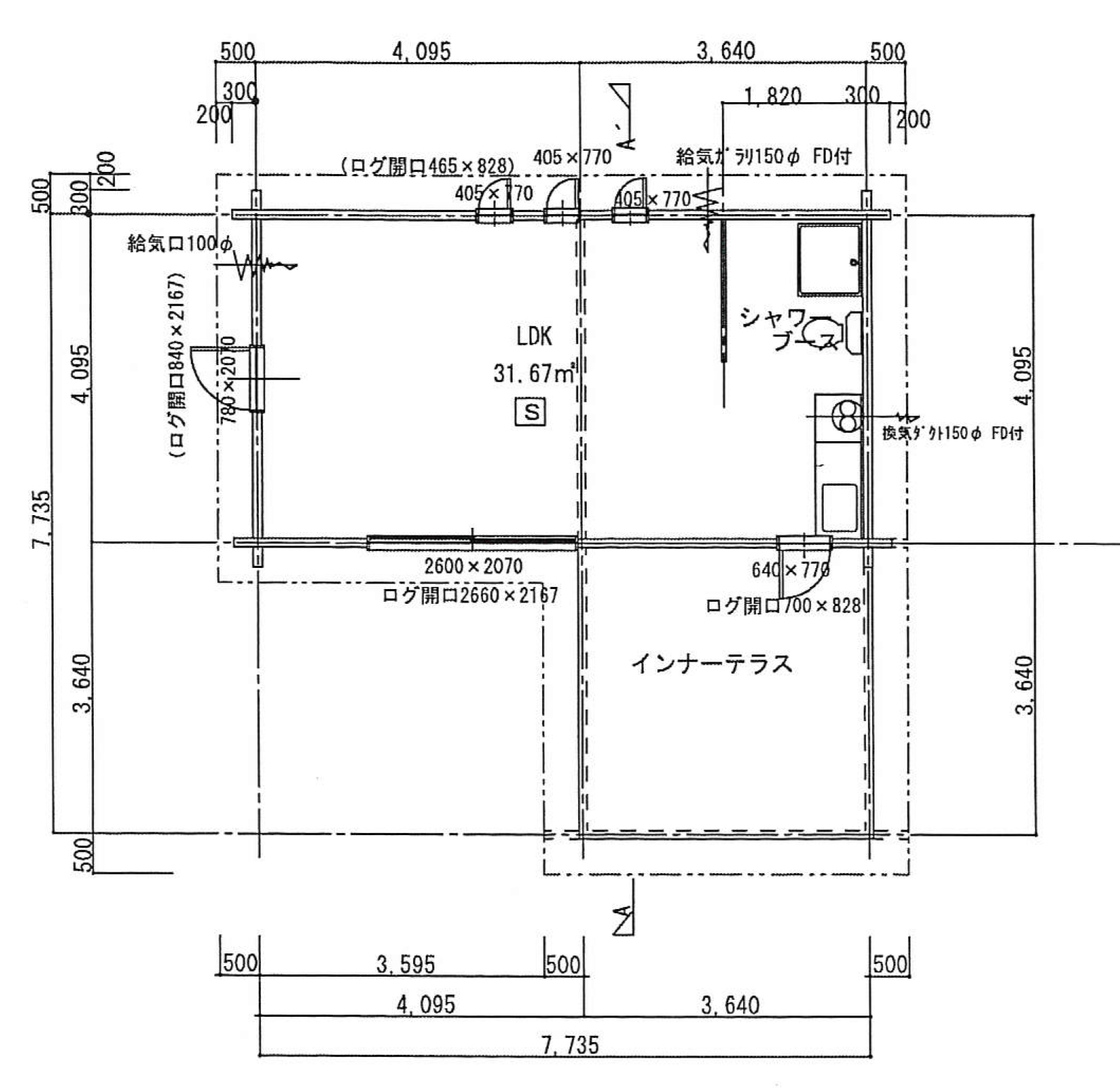
構造・階数:ログ構法・平屋建て
延床面積:44.92㎡(13.59坪)
※色味等は指定できます(塗料等は別途お見積り)
※現地までの交通費・宿泊代別途
※建方施工期間は、2名×4日間程度となります(基礎打設後~上棟まで)
※基礎・屋根の施工は別途お見積りとなります
※確認申請にも対応可能です(別途お見積り)
※確認申請には地盤調査が必要となります(別途お見積り)
※地盤調査の結果、地盤改良工事が必要になる場合があります(別途お見積り)
| ログ小屋の用途 | 小規模店舗、事務所、庭の小屋、車のガレージ、バイクガレージとして |
|---|---|
| ログ小屋はこんな人にお勧めです | ・一味変わったガレージがほしい方 ・お庭に木造小屋が欲しい方 ・DIYで自分で建てたいが、方法を知らないという方 ・忙しくて少し時間がない方 |
ログ小屋のサイズ一覧
| 1,000×1,000 | 物置等にお勧めのサイズです |
|---|---|
| 1,000×2,000 | 物置等にお勧めのサイズです |
| 2,000×2,000 | 物置等にお勧めのサイズです |
| 2,000×3,000 | バイクガレージ・趣味部屋にお勧めです |
| 3,000×3,000 | (キット価格:90万円)バイクガレージ・趣味部屋にお勧めです |
| 3,000×5,500 | 車一台用ガレージです | 4,000×2,000 | (キット価格:80万円)バイクガレージ・趣味部屋にお勧めです | 4,000×3,000 | バイクガレージ・趣味部屋にお勧めです | 4,000×4,000 | バイクガレージ・趣味部屋にお勧めです | 4,000×5,000 | バイクガレージ・趣味部屋にお勧めです |
| 4,000×6,000 | 車一台用ガレージです | 5,000×5,000 | 車一台用ガレージです | 5,000×6,000 | 車一台用ガレージです |
| 6,000×6,000 | 車二台用ガレージです |
※その他のサイズも、敷地に応じて多数取り揃えています。お気軽にお問合せ下さい。
ログ小屋の多彩な使用例
カーポートはもちろん、物置小屋、サーフボード小屋、趣味部屋、DIY小屋といった庭のアクセントや小規模店舗、事務所建築等、用途は多彩で自在に使えます。

ログ小屋の出張組立
ご要望に応じて、現場員が出張組み立てに対応致します。
木製小屋の施工は危険防止や作業効率上、2人以上の組立をしてください。
・ログ小屋組立は材料にマーキングされた番号順に組み立てれば完成するため、大変シンプルです。
・屋根材や木ダボ、小口部分の部材など、全て一式のキットとして納品しています。

ログ小屋の基礎施工も可能です
ログ小屋の構造を支えるには、基礎が必要となります。ガーデンWEBではログ小屋(ログキット)の基礎施工にもご対応致します。土台の位置を考慮したアンカー施工等、細かな部分についてシステム化した施工を行っています。
ログ小屋に、しっかりとした雨仕舞と防水施工
ログの注意点である雨仕舞と防水(軒の設計・土台水切り・土台の防水シーリング・木材間のシーリング)についてもしっかりと設計施工してゆきます。
ログ小屋組み立ての流れ
ログ小屋(ログキット)をご検討中の方は、お問合せフォームよりお気軽にご相談下さい。
<例>
・場所:茨城県つくば市
・3,000×5,500のログ小屋(キット)を希望
・基礎も施工してください
スタッフが敷地にお伺いし、ログの寸法取りを致します。
概算見積を作成致します。
概算見積・内容にご同意いただけましたら、お申込みとなります。

概算見積金額の10%を申込金としてご入金頂きます。
着金確認後に計画がスタート致します。
エリアに応じて販売パートナーをご紹介しています。販売パートナーと工事契約を締結します。
ご契約後に、工事を着工致します。
現場で制作を進めながら、定期的な打ち合せを致します。
工事完了、お引渡しを迎えます。
よくある質問
みなさまからガーデンWEBへのよくある質問をまとめてみました。
お問い合わせ・ご依頼いただく前の参考としてご覧いただければとおもいます。
下記質問項目の答えについてもっと詳しく知りたいという方も、お気軽にお問い合わせください。
みなさまからの気軽なご質問・お問い合わせを、スタッフ一同心よりお待ちしております。
- Q.概算見積はどれくらいの期間で提出してくれますか?
- A.規模や内容などでまちまちですが、通常1週間程度お時間をいただいています。当社は、お客様のために一生懸命「デザイン・機能性・予算など」あらゆる角度からログ小屋を考えていきます。
- Q.どこから費用が掛かるの?
- A.概算見積・内容にご同意を頂いた後にお申込みとなり、このお申込み時より費用が発生いたします(申込金:概算見積金額の10%・・・平均20万円となっています)。ログ小屋のプランニング・お見積りは無料で行っておりますので、お気軽にご相談ください。
- Q.相見積もりを取ってもいいの?
- A.もちろん大丈夫です。ログ小屋(キット)屋さんは各社さん良さがありますので、いろいろ見比べてご検討下さい。
- Q.新築を考えていますが、ログ小屋も早めに計画した方がいいの?
- A.図面上で建物の間取りや配置がおおよそ決まった頃にはログ小屋の計画もスタートさせた方がベターです。
理由としては、
・建物の形状が決まる前に、配管などの状況が分かる
・建物の価格とトータルで考えたほうが良い家創りが出来る
という2点から、早めの外構計画にメリットがあることをお伝えしています。
- Q.今すぐじゃないけど。。。概算見積をお願いできますか?
- A.もちろんです。ログ小屋を含めた家創りはおよそ1年~2年程度時間を取る方もいらっしゃいます。土地を探す段階からでも大丈夫です。最適なプランニングを、ご一緒させて頂ければ幸いです。
その他、ご不明点などがありましたら、お気軽に店舗までご連絡下さい。
ガーデンWEBのログ小屋(キット)販売対応エリア

お問合せフォーム
サイズ・施工条件等をお問合せ欄にご記入の上送信してください。
ご不明な点は、お気軽に店舗連絡先:029-738-5707までお電話下さいませ。